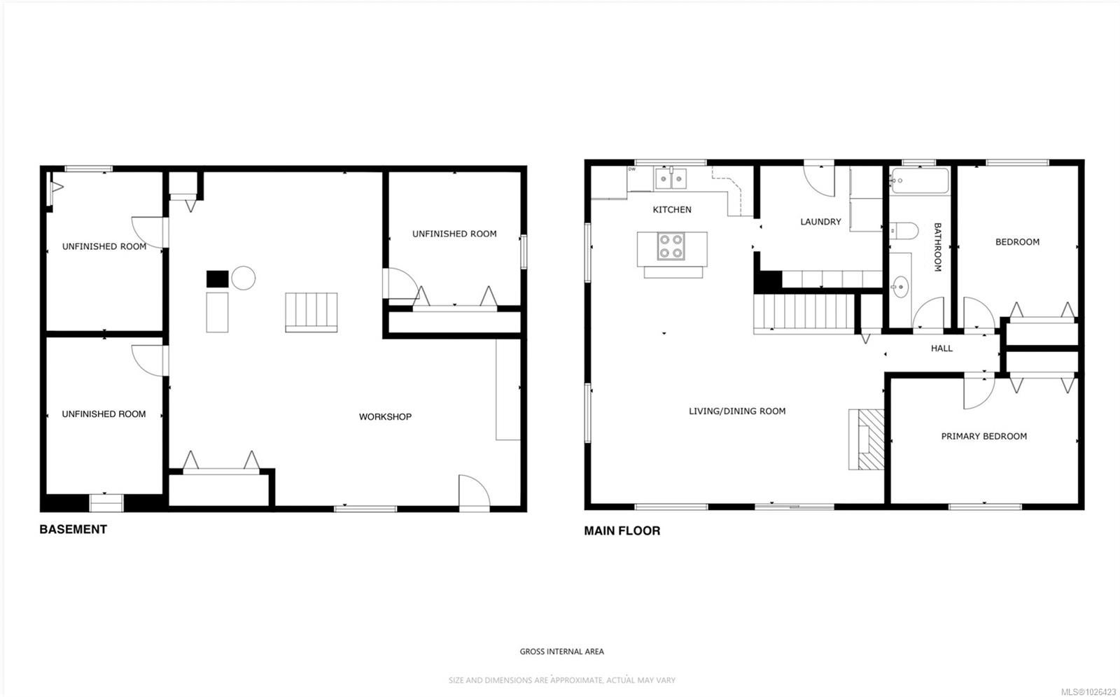
Enjoy south-facing waterfront living with expansive ocean views across to the outer Gulf Islands and the mountains of Vancouver Island. Perfectly positioned for full-day sunshine, this 2-bedroom, 1-bathroom home captures the ever-changing seascape and coastal beauty that draw so many to Gabriola. Located on the desirable south end of the island, the area is known for warm swimming waters, beachcombing, and shoreline exploration. The home features a new roof, an open-concept kitchen, and a living area oriented toward the ocean views. Sliding glass doors open to a spacious waterside deck — ideal for outdoor dining, relaxing in the sun, and watching boats pass by. The lower level (approx. 1,120 sq ft) is unfinished and currently laid out with three rooms and a workshop space, offering flexibility for future development. Heat pumps on both levels provide efficient year-round comfort. The level property offers excellent usability and strong gardening potential thanks to the sunny southern exposure.There is currently no usable beach access from the property, as the original stairway requires repair; however, convenient shoreline access is available just a few homes away via a public trail. An exceptional opportunity to own a south-facing waterfront property in a highly desirable south-end location, prized for its sunshine, coastal beauty, and relaxed island setting. Full informaiton package with video, floor plan and virtual tour are available. Buyers to verify all information deemed important.
Address
2503 Spring Beach Dr
List Price
$949,000
Property Type
Residential
Type of Dwelling
Single Family Residence
Transaction Type
Sale
Area
Islands
Sub-Area
Isl Gabriola Island
Bedrooms
2
Bathrooms
1
Floor Area
1,120 Sq. Ft.
Lot Size
20037.6 Sq. Ft.
Lot Size (Acres)
0.46 Ac.
Year Built
1972
MLS® Number
1026423
Listing Brokerage
Royal LePage Nanaimo Realty Gabriola
Basement Area
Partially Finished
Postal Code
V0R 1X7
Tax Amount
$3,748.00
Tax Year
2025
Features
Baseboard, Dining/Living Combo, Dishwasher, Dryer, Electric, Heat Pump, Mixed, Oven/Range Electric, Refrigerator, Sump Pump, Washer, Wood, Workshop
Amenities
Balcony/Deck, Easy Access, Fencing: Partial, Level, Low Maintenance Yard, Marina Nearby, No Through Road, Southern Exposure, Storage Shed




































