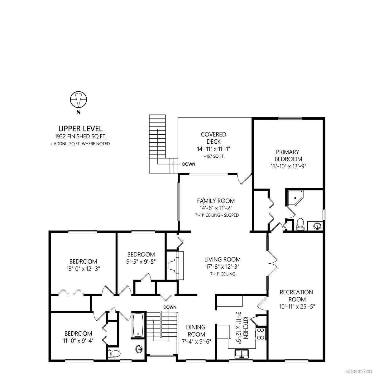
Discover Exceptional Value: A Spacious 7-Bedroom Family Haven with Dual Income Suites! ? This impressive 3,455 sq.ft. residence, nestled on a generous 8,260 sq.ft. rectangular lot, offers an unparalleled opportunity for large or multi-generational families seeking both abundant living space and significant income potential. Thoughtfully designed across two levels, the home features a total of 7 bedrooms and 4 bathrooms, enhanced by two fully self-contained income suites that serve as excellent mortgage helpers. The main living area, spanning 1,932 sq.ft., boasts 4 bedrooms, 2 bathrooms, a bright and inviting living and dining space, a well-appointed kitchen, a comfortable family room, and a large recreation room—perfect for creating lasting memories and hosting gatherings. Below, discover the lucrative potential with a separate 2-bedroom, 1-bathroom suite alongside a 686 sq.ft. bachelor suite, both currently occupied by reliable tenants. Shared laundry facilities and ample common storage add practicality for all occupants. Step outside to a tranquil private yard, complete with a covered deck and patio, all enclosed by mature trees for ultimate relaxation and enjoyment. Recent upgrades, including an updated roof, new windows, and skylights, ensure a bright, light-filled interior throughout the year. Its prime location offers ultimate convenience, with the ferry terminal, shopping, parks, hospital, public transit, and schools all within easy reach. The main portion of the home is vacant and move-in ready, presenting a rare chance to acquire a high cash-flow property with multiple income streams. Don't miss this unique opportunity – contact your Realtor today to schedule a private viewing!
Address
1116 Thunderbird Dr
List Price
$899,900
Property Type
Residential
Type of Dwelling
Single Family Residence
Transaction Type
Sale
Area
Nanaimo
Sub-Area
Na Central Nanaimo
Bedrooms
7
Bathrooms
4
Floor Area
3,425 Sq. Ft.
Lot Size
8260 Sq. Ft.
Lot Size (Acres)
0.19 Ac.
Year Built
1967
MLS® Number
1027864
Listing Brokerage
Pemberton Holmes Ltd. - Oak Bay
| Pemberton Holmes Ltd.
Basement Area
Finished
Postal Code
V9S 2P2
Tax Amount
$4,705.32
Tax Year
2025
Features
Baseboard, Dining/Living Combo, Electric, Mixed, Storage
Amenities
Balcony/Deck, Balcony/Patio, Fencing: Full























































































