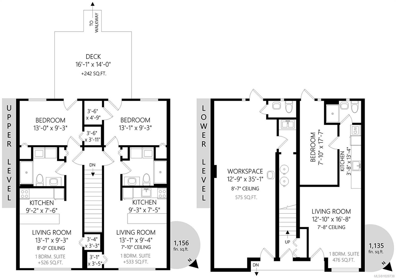
Updated commercial/residential 4-plex in downtown Chemainus for sale. . Upstairs features two fully renovated 1 bedroom apartments used as authorized Airbnb rentals with steady income. Downstairs left side rented out to a long term commercial tenant (hair stylist). Bottom right side is formatted for a 1 bedroom residential rental but could also be used for a commercial tenant or professional office. This is a great opportunity for a flexible income property or a live/work space. Aprox 7% cap rate fully rented. Great location across from the Chemainus Theatre. DO NOT disturb tenants. Info package available. Make an appointment to view to today.
Address
9736 Chemainus Rd
List Price
$1,250,000
Property Type
Residential
Type of Dwelling
Quadruplex
Transaction Type
Sale
Area
Duncan
Sub-Area
Du Chemainus
Bedrooms
2
Bathrooms
3
Floor Area
2,291 Sq. Ft.
Lot Size
1292 Sq. Ft.
Lot Size (Acres)
0.03 Ac.
Year Built
1992
MLS® Number
1028738
Listing Brokerage
RE/MAX Generation (CH)
Basement Area
None
Postal Code
V0R 1K0
Tax Amount
$6,782.45
Tax Year
2025
Features
Baseboard, Basement Slab, Electric, Mixed
Amenities
Central Location, Easy Access, Marina Nearby, Near Golf Course, Shopping Nearby























