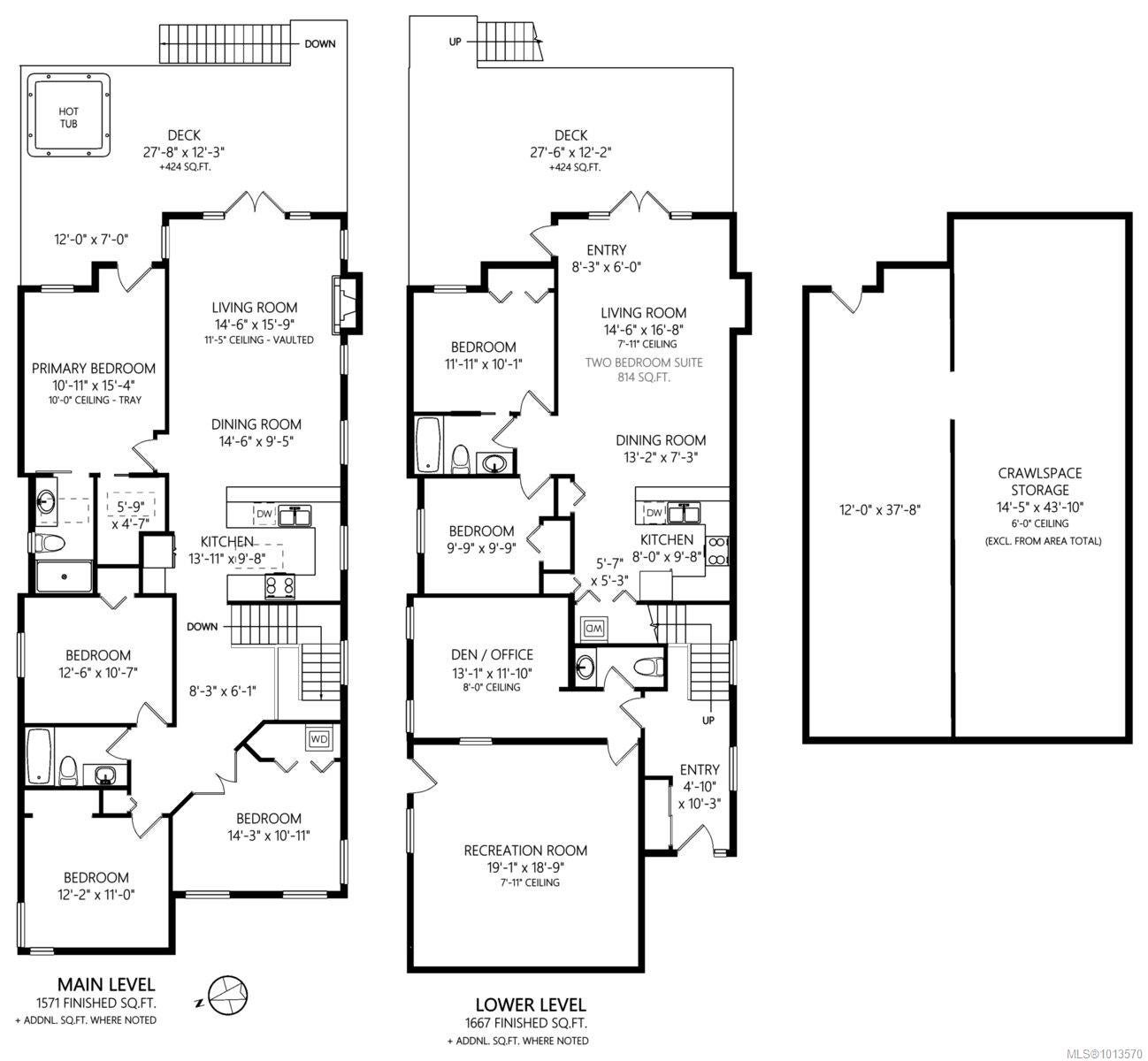
New Price $1,899,900 Located at 164 White Pine Rd in View Royal on a quiet cul de sac. This Immaculate and well thought out 2010 year built Custom Oceanfront Home (Borders Helmcken Centennial Park,Small Riparian Area boasts 3200+sqft of pristine living space. Main living area up, 2 bed legal suite down + Garage professionally converted into exceptional office space with the reception area, office and 2 pcs bathroom. Lots of storage, massive 6 feet high, 26' x 40' Crawl space with workshop area under home, normal access door) All of this sitting on .22 of a flat manicured, landscaped yard with room for canoes and paddle boards on the low bank water access. Minutes walk to all amenities, Park, Schools and of course Helmcken Hospital. Attention to detail is appreciated throughout as features include on main living area offering an excellent set up for people who like to entertain (or just relax) with a open Living/Dining area and gourmet style Kitchen with 10' high ceilings all facing the water view. Living room has classy fireplace, double french doors to massive 27'x12' full length deck with hot tub. Impressive master bedroom also accesses the sun deck, so main living off the back. Master has walk in closet, nice ensuite with full walk in shower. 3 other bedrooms on main are located on road side of house, one is used as a gym, there is a guest bedroom and a spa room set up. So plenty of space, (Assumable Mortgage, Blend or Take over? Call for Details ) this is a must see home. Listed at $1,999,900.(Overnight notice is appreciated for showings)
Address
164 White Pine Rd
List Price
$1,899,900
Property Type
Residential
Type of Dwelling
Single Family Residence
Transaction Type
Sale
Area
View Royal
Sub-Area
VR View Royal
Bedrooms
6
Bathrooms
4
Floor Area
3,238 Sq. Ft.
Lot Size
9583.2 Sq. Ft.
Lot Size (Acres)
0.22 Ac.
Year Built
2010
Maint. Fee
$35.00
MLS® Number
1013570
Listing Brokerage
Maxxam Realty Ltd.
Basement Area
Crawl Space
Postal Code
V9B 5E1
Tax Amount
$6,213.65
Tax Year
2024
Features
Baseboard, Dining/Living Combo, Electric, Natural Gas, Vaulted Ceiling(s), Workshop
Amenities
Balcony/Deck, Cul-De-Sac, See Remarks


































































































