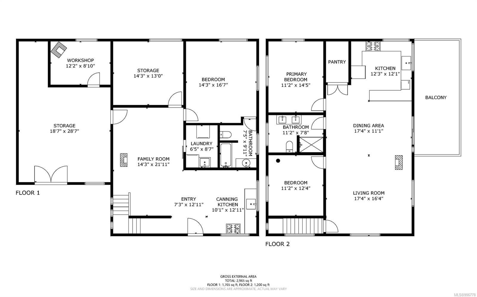
Read Island custom built home on 3.7 acre off-grid, highbank oceanfront property overlooking King Island Bay! This 2,400 sq ft two level home features a low maintenance design with metal roof & siding & aluminum deck on the upper floor. The lower level of the home offers a covered deck off the entry that opens to the canning kitchen with propane range & electric stove & stainless steel prep sink. There is a spacious family room with woodstove also on the lower level, with doors leading to the storage & workshop & large pantry. There is 1 bedroom with a 3pc ensuite also on this level. Upstairs you’ll find the inviting open floor plan living room, dining room and kitchen with vaulted ceilings, a woodstove and sliding door to the upper deck overlooking the ocean. The kitchen has a propane & electric oven & electric fridge and a good-sized pantry. Also on the upper floor there are 2 bedrooms and a 3pc bathroom, including the primary bedroom. The home boasts modern engineered flooring throughout, nice neutral paint & many windows. The sale includes most furnishings & off-grid equipment to run the power to the property including 15 solar panels, Pelton wheel turbine, inverter and battery bank. Other features of this beautiful property include two wood storage sheds, established fenced garden with irrigation, hot house & greenhouse/potting shed. There are also 4 apple trees, 1 pear tree, 1 cherry tree & 1 plum tree, plus a variety of other established fruit/vegetable plants and ornamental plants. Much of this acreage is in natural state with a nice mix of mature trees. This property is situated in a bareland strata subdivision on the west side of Read Island, with a shared strata wharf and road system through the subdivision to easily access the property from the wharf, about a 10 minute private boat ride from Heriot Bay. Come enjoy peaceful off-grid island living!
Address
SL10 Read Island
List Price
$749,000
Property Type
Residential
Type of Dwelling
Single Family Residence
Transaction Type
Sale
Area
Islands
Sub-Area
Isl Read Island
Bedrooms
3
Bathrooms
2
Floor Area
2,400 Sq. Ft.
Lot Size
161172 Sq. Ft.
Lot Size (Acres)
3.7 Ac.
Year Built
2013
Maint. Fee
$54.17
MLS® Number
996778
Listing Brokerage
Royal LePage Advance Realty
Basement Area
None
Postal Code
V0P 1W0
Tax Amount
$1,443.00
Tax Year
2024
Features
Dryer, Other, Oven/Range Gas, Propane Tank, Refrigerator, Vaulted Ceiling(s), Vinyl Frames, Washer, Wood
Amenities
Acreage, Balcony/Deck, Dock/Moorage, Fencing: Partial, Garden, Greenhouse, Hillside, In Wooded Area, Park Setting, Private, Quiet Area, Recreation Nearby, Rural Setting, Southern Exposure, Storage Shed, Workshop













































































